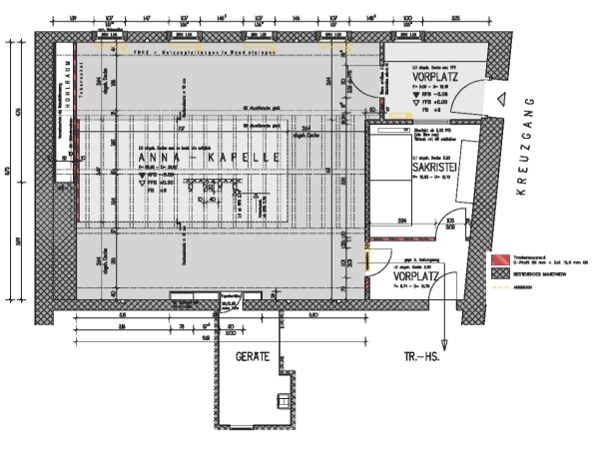
Renovierung Anna Kapelle, Kloster Bad Wimpfen

Totalsanierung Anna Kapelle

Ort:  Bad Wimpfen 
Ausführung: 2015 - 2016


Kapelle Bestand Alt

Kapelle Neu

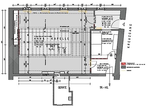
Kapelle Bestand Alt

Kapelle Neu

Kapelle Bestand Alt

Kapelle Neu

Vorplatz Bestand Alt

Vorplatz Neu