NIVEAUVOLLE GESTALTUNG.
TRANSPARENTE KOSTEN.
TERMINGERECHTE AUSFÜHRUNG.
Qualitätsanspruch von Thomas Steinbrenner
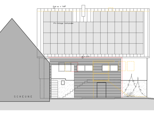
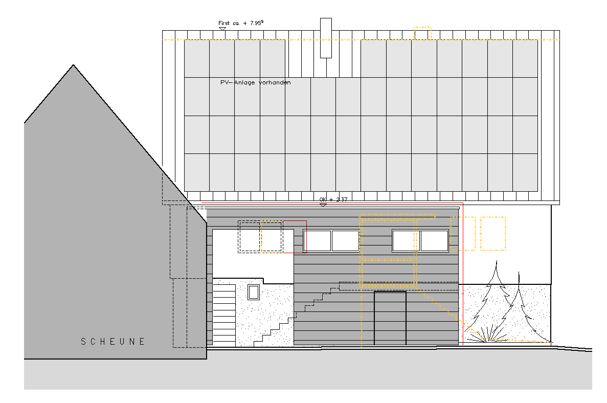
Hier entsteht neuer, moderner Wohnraum
Bad Wimpfen- Hohenstadt
Baubeginn 2023